本案例出自集成·美裝家湖南邵陽門店,在整個裝修施工過程中,我們的門店負責人擔當施工監理,給業主提供了透明的裝修進展,及時匯報裝修近況以及工地現場,及時反饋和解決裝修中的各項問題,實現了業主省心省力,拎包入住的裝修體驗。

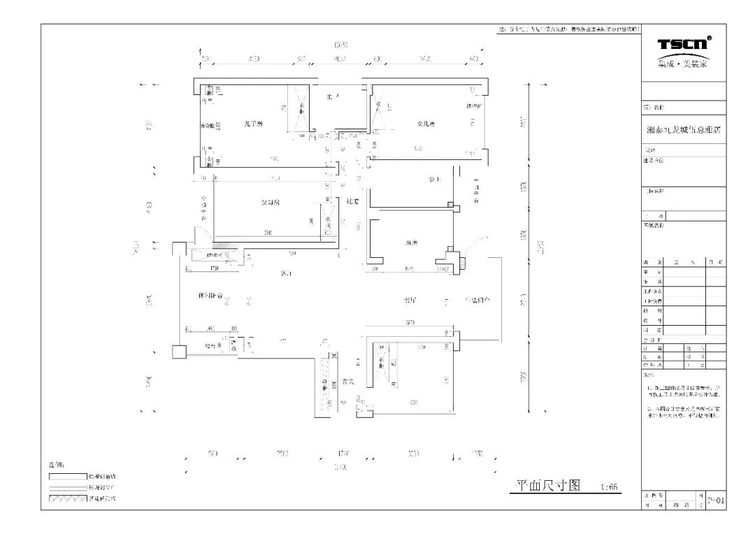
房屋戶型:四室兩廳一廚兩衛
常住人口:4人
房屋屬性:新房毛坯
裝修時間:三個月
裝修費用:38W
房屋面積:137平

客戶需求:
1、業主和兒女工作都忙,不太懂裝修材料,裝修期間不想多次到現場,省事省力最好。
2、一家4口,兒女已經長大了,需要各自的獨立空間,平時兒女的朋友偶爾會來家里聚餐,需要一個獨立的客臥;
3、大家工作比較忙,休息在家的時候都想要有一個休閑放松的場所;
4、一家人都比較喜歡輕奢的裝修,最好是現代風格;

設計思路:
1、由于客戶想要省心省力的裝修,所以我們采用了“無口碑,不裝修”的全屋整裝業務模式,裝修全程由我們包攬,設計師會做出前期的全案設計,提供可靠的主輔材以及家具家電等軟裝的搭配采購方案,對施工材料以及軟裝落地進行管控。
2、考慮到兒子以后的結婚需求,將主臥讓給了兒子,父母房在洗漱間對面,方便起夜,同時又不會被其他人起夜的聲音吵到。
3、結合大家想要有休閑空間的需求,在客廳打造了一個可供小憩的休閑陽臺,還放置了年輕人喜歡的吧臺和酒柜。
由于是現代輕奢風,客廳采用了大面積的白色,細節之處在于設計師對材質進行了選擇,電視背景墻是大理石紋搭配格柵板,與地面的大理石瓷磚相呼應,而沙發背景墻則是布紋質感,與布藝的沙發相得益彰。

搭配小Tips:沙發背景周邊放一些掛畫,裝飾,家里會看起來更精致哦~
餐廳的整個采光比較好,通透感十足,單獨還做了一個生活陽臺,以供洗晾曬衣物,背景墻用的是格柵板,整個風格比較小清新。
搭配小Tips:皮質的餐桌椅和金屬的擺件搭配,個性潮流,更容易營造輕奢風的感覺哦~
臥室的整個色調比較溫和,淺色基調干凈耐看,沒有太多復雜的裝飾與家具,輕松寧靜的感覺。
搭配小Tips:臥室采用淺色搭配,靜謐舒適,讓人更容易入睡哦~




